apartment

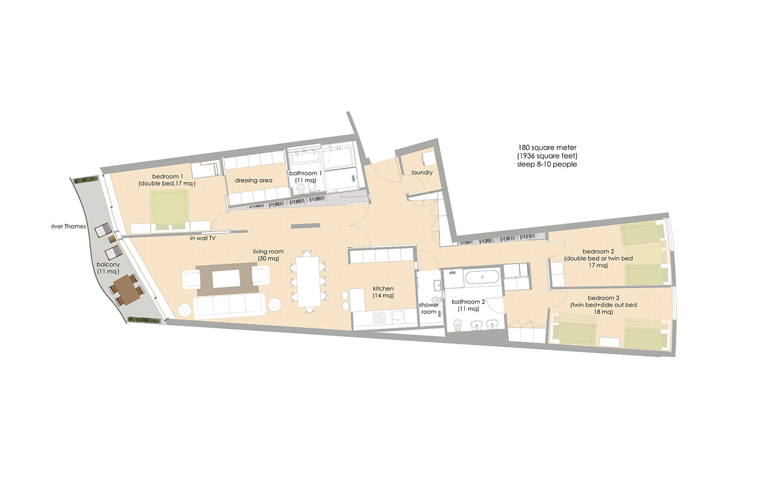
Qpriverside is a stunning 3 bedroom 180 sq mt apartment located in the iconic Albion Riverside Building, designed by worldwide renowned Foster & Partners Architects with 24 hours security, gym, 20 mtr swimming pool and private parking. Kit is located in between Albert Bridge and Battersea Bridge, two minute walk from Battersea Park. From the balcony there is a sensational view of the River Thames, as well as Chelsea.